

—
Project Name:Melbourne Quarter
Project Type:Apartment
Project Address:691 Collins St, Docklands Victoria 3008
Project floorplans:One bed/Two beds/Three beds
Estimated Settlement: Year 2019
Melbourne Quarter comprises three residential buildings, three commercial building, a new laneway and two gardens. Construction will start in May and a estimated settlement will be in year 2019.
Mebourne Quarter, a vibrant, sophisticated new neighbourhood where the very best the city has to offer will be yours for the taking.
Situated in the heart of the city's pulsing economic entre, Melbourne Quarter will hum with the rush and excitement of a global metropolis. Step into the colourful streets and hidden laneways and discover a melting pot of culture, cuisine and creativiey. Connect to everywhere and beyond, thanks to an unrivalled location next to Melbourne's main transport hub, Southern Corss Station. And when you need time out, you'll find your new residence will be an elegant sanctuary amid the hustle.
Global Expertise -- The Lendlease
Lendlease's vision is to create the best places. As a leading international property and infrastructure group, their end-to-end expertise across the property value chain has allowed them to deliver some of the most iconic places in Australia, Asia, Europe and the Americas. Their breadth of capabilities in urban living makes them one of the bst and most capable developers to deliver complex, sustainable and vibrant precincts to live, work, visit and play. Every day Lendlease is striving for excellence and setting new benchmarks in urban living across the globe.
Introducing Melbourne Quarter
In Melbourne Quarter, they had the once-in-a-lifetime opportunity to create a landmark precinct that not only responded to the city's history, but also helped define its future.
Soaring and graceful, East Tower will epitomise Melbourne Quarter's confident, yet sympathetic visual statement, making the most of its prime position overlooking the city, bay and Yarra River. With inspiring outlooks from every apartment, elegant finishes, a neighbourhood park and unrivalled amenity on your doorstep, East Tower will herald a new era of urban living.
Perfect Internal Facilities
A grand arrival
Gym
Swimming Pool
Contemporary Elegance
Nearby
Transport:
Southern cross station -- 200m
Tram Stops -- 50m (Tram 11 & 48)
Tram Stops -- 140 m (Tram 11, 12, 48, 109)
Bus Stations -- 50 (#232 235 237)
Shops
Woolworth -- 200m
DFO -- 550m
Coles -- 550m
Melbourne centre -- 1.7km
QV -- 2.0km
Emporium -- 1.3km
Education
RMIT -- 2.5KM
University of Melbourne -- 3.5km
Albert Park College
North Melbourne Primary School
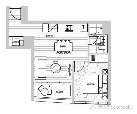
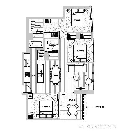
Floorplans
One Bed One Bath
Two Beds One Bath
Two Beds Two Baths
Three Beds Two Baths